W Przychowej stanie zupełnie nowa świetlica wiejska, zaś obiekty w Parszowicach i Zaborowie zostaną gruntownie wyremontowane. Nie są to pierwsze, ani ostatnie inwestycje tego typu w gminie Ścinawa. Samorząd zamierza bowiem zmodernizować wszystkie świetlice w gminie, po kolei.

Od 2015 roku w gminie Ścinawa wybudowano, przebudowano lub kompleksowo zmodernizowano miejsca spotkań mieszkańców w: Turowie, Dziewinie, Dąbrowie Środkowej, Wielowsi i ostatnio w Lasowicach.
Teraz zajęto się kolejnymi trzema miejscowościami. Gmina wybrała już wykonawców i podpisała umowy na modernizację świetlic w: Parszowicach i Zaborowie oraz budowę nowego obiektu w Przychowej.
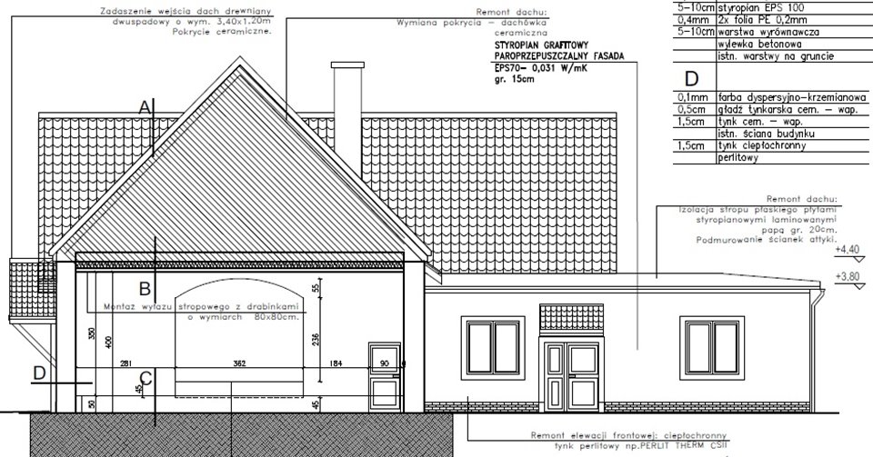
Modernizacje w dwóch pierwszych miejscowościach obejmą: przebudowę pomieszczeń wewnątrz świetlic, aneksów kuchennych oraz toalet. Budynki zostaną ocieplone, a ich elewacje wyremontowane. Przedsięwzięcie zakłada także wymianę instalacji wodociągowej, kanalizacji sanitarnej, CO i wentylacji. Zagospodarowany zostanie teren wokół.
W Parszowicach w ramach modernizacji zaplanowano dodatkowo przebudowę schodów zewnętrznych oraz wykonanie podjazdu dla niepełnosprawnych, a wewnątrz montaż sufitu podwieszanego. Z kolei w Zaborowie przy świetlicy ma powstać zupełnie nowy plac zabaw.

W przypadku inwestycji w Przychowej zakres prac jest nieco inny, bo miejsce spotkań mieszkańców tworzone będzie od podstaw. Powstanie parterowy budynek z zadaszonym tarasem wraz z elementami infrastruktury technicznej i zagospodarowaniem terenu. Obok świetlicy postawione zostaną ławki, stojaki na rowery oraz kosze na śmieci. Przygotowane też zostaną miejsca parkingowe, a całość zostanie ogrodzona.
Prace we wszystkich trzech miejscowościach ruszą niemal jednocześnie, najszybciej, bo już teraz, w Zaborowie. Świetlice powinny być gotowe we wrześniu 2018 roku.
Wszystkie inwestycje w sumie będą kosztować gminę Ścinawa prawie 3 mln zł.
W tym roku ponad milion złotych na modernizację świetlic na terenie gminy Ścinawa przekazał powiat lubiński. Gmina zawnioskowała, aby również w przyszłym roku starostwo wsparło tego typu projekty.
Źródło: KubA/scinawa.pl













